今天小编就跟大家分享一下,淘房设计师针对树高威尼斯二期135平米三室户型做的户型解析。
基础信息
楼盘:树高威尼斯二期
户型:3室2厅2卫
面积:135平米
户型亮点:有入户式花园,阳台和主卧空间超大。

原始户型图
业主需求
业主对于整体空间布置上要求了五点:
1.装中央空调,做全屋吊顶
2.想要一个衣帽间、榻榻米儿童房
3.需要多一点的储物空间
4.阳台需要有收纳和休闲功能
5.主卧想要独立阳台
于是设计师根据业主的需求,把户型结构做了整改!如下图:

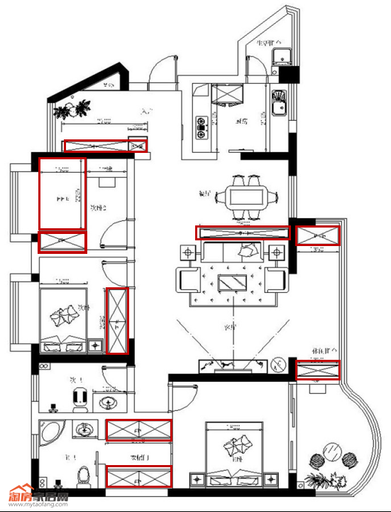
平面设计图
户型优化前后对比


户型优化后收纳区

户型优化后动线

功能解析

1.入户花园和鞋柜的结合,人多也不怕拥挤哦。
2.厨房双一布局,过道非常宽敞。
3.榻榻米儿童房,即增加了收纳又美观。
4.餐桌与沙发之前的柜子,不仅仅起到隔断作用,还能当做餐边柜和沙发背柜,这样即美观实用又符合风水。
5.阳台添加了一个收纳柜,阳台一分为二,主卧设计独立阳台。
6.主卧添加了一个衣帽间,并且完美解决主卫门直对主卧的问题。
以上就是今天分享的所有内容,淘房好装的设计师们都是完全根据业主的不同喜好和需求进行设计的,这样设计出来的房子才是最合适哦。
如果您正愁着:
1.自己的房子该如何设计。
2.设计方案、合同、报价单,晕乎乎看不懂。
3.开工后,施工节点数不清又看不懂,不知道如何把关。
4.怎么才能装出美美的家。
5......
那就不妨在下方报个名,免费参加10月28号本周六的装修沙龙,超级干货和海量福利等你来拿哦!
