装修很累!
但当你看着房子完工后的样子,
又觉得一切都是那么值得!
这套房子业主是两位年轻人,
一直都喜欢简单的样子,
所以装修就走的极简的格调。
基础信息
楼盘:喜来公社
户型:三室两厅两卫
面积:110 平米
风格:北欧
设计:淘房好装
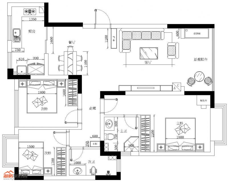
户型图

原始户型图

平面户型图
点评:
房子的户型很方正,
除了个别门洞的更改,
一切都是原始户型的样子。
完工实拍
目前新房还没入住,房子少了一丝烟火气息。

其实我们要的装修只需要这么简单!
既能出效果又少花钱,
其他的交给软装吧!
客餐厅篇
业主非常喜欢这样的完工效果,
墙面也是很多人喜欢的浅灰色。

业主说墙面颜色如果再深一些就更好了
所以建议大家在漆工师傅施工
乳胶漆调色阶段,
能去现场看调色最好,
这样调色出的深浅更能让自己满意


客厅采用了轨道灯+北欧木质主灯
走廊用了小吊灯,
和筒灯相比又有了另外一种感觉。
至于过道用筒灯还是吊灯,
就看个人的喜好了!

阳台铺了石材,边缝准备铺一层白色石子。

卧室篇
主卧卧室仿木地板瓷砖
如果想用瓷砖,
又想要木地板的感觉,
那仿木纹砖就是首选哟。

定制衣柜,木纹色,集美貌和实用于一体。


床头吊灯,是不是更有感觉呢?

来组特写

次卧

透过窗帘看小区,隐约朦胧美。

窗帘确实是整个房间的点缀,效果怎么样?
儿童房
儿童房就很简单了,目前还没想好怎么布局。

厨房篇
小灰砖和水泥砖是近年比较流行的。
而且使用看起来也不易变脏。

很多网友都特别喜欢这
个黑钛金的厨房门,格调是必须有的。

卫生间篇
主卫空间还比较大,用了淋浴隔断,
搭配现代感十足的主卫地砖。

次卫灰色加工砖,
淋浴区域用了六角砖点缀,北欧风十足!

整套房子的基装是不是都很简单呢?
但是整个房间的色彩和细节搭配
就会非常的耐看和有质感啦。
如果你还想了解更多关于这个工地的详细内容,
或者有任何装修问题,欢迎咨询客服妹妹(微信:18011123494)
