在绵阳城区(未包含安州区)楼盘均价早已过8000,涪城区内早已过万的行情下,难得发现有这样一个楼盘,位于涪城区,一批次4月15日开盘,售价在8500元/㎡左右。单看价格和地段,该楼盘在涪城区在售和待售的楼盘中性价比极高,且在淘房家居网官网上的咨询度也比较高,于是,就有了今天这篇踩盘报告。
区位板块
板块发展成熟,居住氛围浓
嘉来·缤购天地位于长虹大道北段59号,高水北部--平政片区,隶属于绵阳市城北区域。

(项目位置以图上五角星标志为准)
繁华--是涪城区的代名词,在2000年的时候,高水一带就已经很热闹了。周边居民社区分布密集,人来人往。生活出行也特别便利,虹高市场更是人们常常会去转悠的地方。随着绵阳城区规划发展的脚步,跃进路一带已发展成为历史街区,保留大量红砖房,还修建有大型商业中心。
近几年,高水一带规划发展已经成熟,可用于修建住宅的土地不多。而平政一带除本身规划有的居民社区外,住宅用地相对较多,区域内许多楼盘均已交付入住,居住氛围丝毫不弱。再加上位于主城区内,除了能坐享涪城区发展红利,还享受着学区划分的待遇。

(图中标注了嘉来缤购天地、御景名城、福星上江城的位置)

(项目西北面分别有世纪佳苑、平政九队、御景名城、平政八队)
作为平政片区内待售的三个楼盘,我认为售价差不会太大。御景名城与嘉来·缤购天地距离十分近,距离不足200米。嘉来·缤购天地属性为纯新盘,产品的规划设计、商业规划都比较新。再看御景名城,项目共规划有5期,即将推出的是5期且仅有1栋楼,小区内均已交付入住。从产品规划和设计来看,对比嘉来·缤购天地都不够“新”。福星上江城也是纯新盘,周边住宅项目少,人气明显没有嘉来·缤购天地高。且周边还有规划用地待开发,发展为成熟住宅区还需要时间。
项目规划
本土国企开发 “袖珍”盘 临近菜市
嘉来·缤购天地由绵投集团旗下绵阳嘉金实业有限公司开发,就是那个参与修建了越王楼、绵阳科技馆、跃进路历史文化街区、小枧生态湿地公园等多个绵阳城建项目的绵投集团。
项目总占地25亩,总建面61129.74㎡。单看土地面积,这是一个称得上“袖珍”的盘了。再看产品规划,项目规划有3栋高层住宅,共26层;2栋独立商业,均规划为4层。项目体量小,容积率就偏高,居住舒适度会打折扣。也是有利有弊,最突出的优点就是地段,其次公摊面积变小。尽管项目规划有商业,但生活配套还是会依赖于周边小区或街道。

还有两个值得注意的问题,一是除目前已售罄的3号楼,1号楼和2号楼均临街。尤其是1号楼两面临路,位于十字路口转折处。东临长虹大道,作为城市交通主干道,车流噪音的影响不可小觑。2号楼单面临路,但仍有噪音影响的可能。

第二点,在现场项目施工规划图中,5号楼是被规划为农贸市场。如果建成后作为市场使用,那么生活环境会更加嘈杂,3号楼距离5号楼最近,生活杂音包括环境都会有影响居住品质。


(项目西面紧邻着菜市)
项目西面也就是商业挨着的位置,是社区菜市场,这是小淘实地看到的情况。因为是下午3点左右,很多摊贩都已收摊,经过这一段路发现有挺多的飞虫,走到尽头便是不知名的河流,还有一家茶馆在路边支着摊。
配套设施
学区房 交通便利不便捷 大型商业稀缺
教育资源
项目位于长虹大道北段59号,据《绵阳涪城区学区划片方案一览表学区划分最详细版(2017-2018新版)》,嘉来·缤购天地学区划分为西山小学、七中城北校区。项目周边1公里内有18所幼儿园,不包括位于项目南侧的凯越瑞天阳光正在装修的一家幼儿园。实验小学长虹世纪城分校与项目直线距离310米;距西山小学1.4公里;距七中城北校区1.5公里。

涪城区是绵阳城市发展的领头羊,教育资源已经成熟。和科创园区不同的一点是,涪城区内以公立院校为主。教育质量较好的公立院校均坐落于此,例如绵阳中学、成绵路小学、实验小学、绵阳一中、绵阳七中等,但分布不集中。
交通
嘉来·缤购天地位于涪城区长虹大道北段与高水南街交汇处,交通路网四通八达。距离项目500米有平政客运站;周边最近的公交站是高水南街站,可乘坐6路至经开区。步行4分钟可达到平政村公交站。

(摄于手机,不太清晰,绿色字体为畅通,黄色字体为通行,红色字体为拥堵)
献上此图,这是小淘踩盘结束后,在西城花园也就是凯越瑞天阳光对面,发现长虹大道北段上的电子屏上注明了二桥附近不同时段的交通状况。图上显示自晚6点起,二桥附近交通呈现拥堵状态,并持续至晚10点。
商业配套

(红线为商业集中地带、橘线分别为福星时代天骄、跃进路1958、涪城万达)
涪城区大型商业大多集中于中部并延伸至南部,涪城区以北仅有位于跃进路的两个大型商业,以西仅有1个,在平政片区还未有大型商业的出现。项目周边多为社区底商,1公里范围内分布有大型超市、综合市场以及家居市场。

位于项目北面是瑞仕名都,以大型购物超市为中心衍生的购物广场,平政社区卫生服务站也建立于此,属于社区裙楼商业。距离项目不到500米有虹高市场、绵州美家居城;1公里左右有高平市场。

产品规划
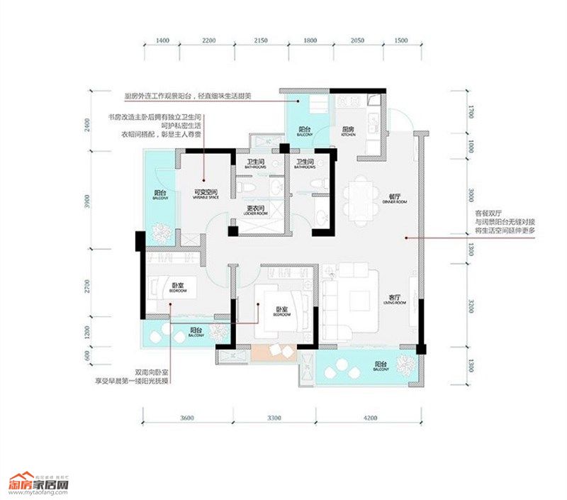
项目推出房源面积区间为82-131㎡,1号楼和3号楼的梯户比为两梯四户,2号楼为两梯五户且临街有三户。项目共规划有5种户型,A户型分布于1号楼和3号楼,2号楼全部为B户型,A、B户型均赠送有阳台。4月15日开盘了3号楼,目前可选的房源无。那就来看看1号楼和2号楼还有那些可选择的户型:

A1户型建面约103㎡,分布于1号楼和3号楼朝中庭的位置,南北通透。

A2户型建面约117㎡,同样位于1号楼和3号楼,但该户型临路。低楼层居住舒适度不如高层,灰尘多也是临路住户的一大困扰。

B1户型建面约95㎡,分布于2号楼临街的位置。

B2户型建面约130㎡,分布于2号楼朝中庭的位置和正临街的位置。

B3户型建面约82㎡,主要分布于2号楼除正临街一户的所有位置(朝内朝外均有)。
从产品规划、分布和梯户比来看,小淘认为更适合刚需的标准。此外,2号楼4—26层的正临街位置(B1户型、B2户型)日照时长较短。购此户型时,建议向售楼部人员确认后并多多对比在做决定。
以下是我在实地拍摄的施工进度,交房时间暂定。

(项目正在施工)

(如图所示,最高那栋是3号楼,1号楼和2号楼还在做基础工程)


(4号楼主体结构完成,5号楼主体也已修至4层)
购买建议
从价格来看
嘉来·缤购天地上批次3号楼开盘售价在8500元/㎡,下批次已经在预约登记,但开盘时间未定。小淘认为后续开盘售价不会超过10000元/㎡。在涪城区动辄上万的楼盘中,嘉来·缤购天地所处的地段加上价格算是性价比高的。
从居住环境来看
周边小区除凯越瑞天阳光和御景名城外均已有些年头,周遭环境也不尽人意,未来如有棚改规划,居住舒适度将会受到影响。区域内人口密集,居住氛围浓,同时生活噪音同样影响居住舒适度。
从配套来看

绵阳的交通道路,每到早高峰、晚高峰或是节假日都是拥堵的状态,所以无论住在哪里,能够距离目的地越近是越好。项目的所处的位置能够快速达到客运站,公共交通也是非常便捷,连接至绵阳各区域。如果不是追求私立院校,相对于科创园区,涪城区的公立院校是个更好的选择。且该项目为学区房,楼市的热门产品,刚需置业或是投资皆宜。
综合以上,小淘认为若是今年内想在涪城区置业的刚需或投资的购房者,该楼盘是可重点关注的对象。
还有一点,项目西面3号楼紧挨着几栋低层住宅,朝外的低楼层在观景视野上会受局限。

(项目的西面,几栋7层住宅)
鉴于3号楼已是售罄的状态,该提醒仅供准备购房的朋友参考。
项目下批次推出113-116㎡房源,开盘时间未定,接受预约登记。
以上信息数据来源于小编实地观察、官方平台和网络,有关项目的具体经济指标,请以开发商口径为准。
如果绵阳的房子你看厌了,欢迎来参加淘房家居网近期即将举办的旅行看房团,一个周末带你耍云南滇池,还是挺划算的。欢迎添加淘先生微信(mytaofang2013)咨询,或参加报名。
