如果你已经看腻了北欧风,不妨换换口味,试试极简的小美式风格吧!小编今天给大家分享一下一对90后小夫妻自己精心布置的婚房吧。

基本信息
楼盘:喜来公社
户型:2室1厅1卫
面积:76平米
风格:简美式

原始户型图

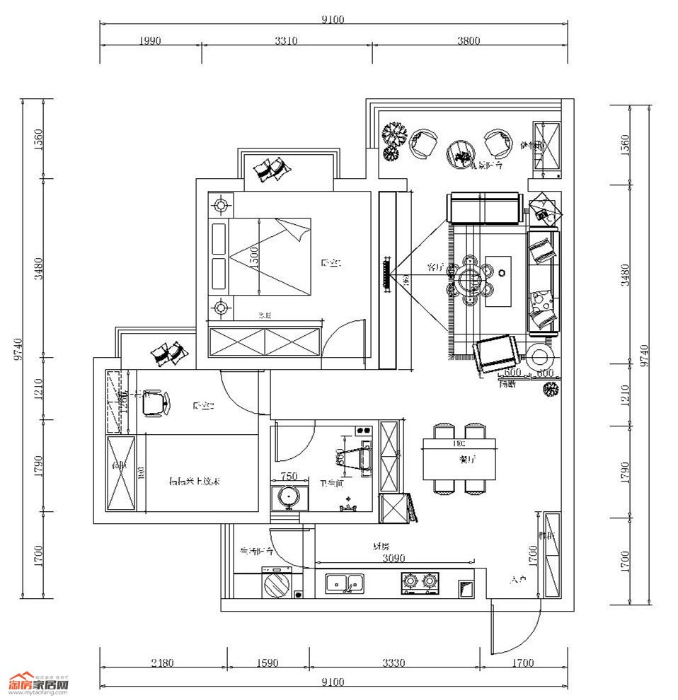
平面布局图
户型分析
户型亮点:
76平米套二户型,户型功能明确;
两个房间的采光都相当不错。
户型劣势:
厨房布局受限,操作不太方便;
入户直对客厅。
方案整体没有太大的改动,唯一比较亮点就是根据业主需求把厨房设计成开放式厨房,也许大家会觉得开放式厨房油烟大,其实只要抽油烟机选对了问题不大哈!不知道怎么选的戳这里:您的油烟机选对了吗?
软装完工实拍
注明:照片来自淘房好装实拍图,盗图必究。


入户的部分可以看到是设计了可坐式鞋柜,小编在这里强烈推荐选择,非常的方便和实用!

业主在餐桌的右边墙的位置设计了一个小小吧台,既有情调又能做办公区。



小美式的沙发椅真的看着很有质感,而且大家发现没?休闲阳台的位置采光超好!

阳台向室内实拍

不知道大家看到那个小牛牛座椅没?颜色与茶几同色,不得不说小两口在软装搭配上花了不少心思。


餐桌做一组柜子,增加了收纳空间,而且因为做了开放式厨房,冰箱的位置有了,做饭的时候非常方便。

别出心裁的地砖花色和木地板拼合,有种独具一格的美感!

在餐厅与客厅之间做了一个隔断,增加了客厅的隐秘性,而且摆放一些盆栽和书籍,非常能出效果。
由此可见,软装上面其实只要多花那么一点心思和精力,还是能出效果的;如果你们家准备要装修,或者正在装修,那么你一定要关注:2018绵阳第二届淘房家居网装修日记活动 电视机、冰箱、洗衣机、小米空气净化器....送 送 送!