装修实例:绵阳的奥林春天,居然是这么装修的

  • 编辑:taofang2018
  • 发布时间:
  • 阅读量:555

淘房家居网5月10日消息 装修其实是一件非常个性化的事情,不同的人有不同的需求,随之而来所产生的装修费用也会不同。

今天就给大家分享一组来自我们大绵阳奥林春天的装修案例,这是一套三室的房子,屋主根据自己的居住需求,改成了两室。

图片

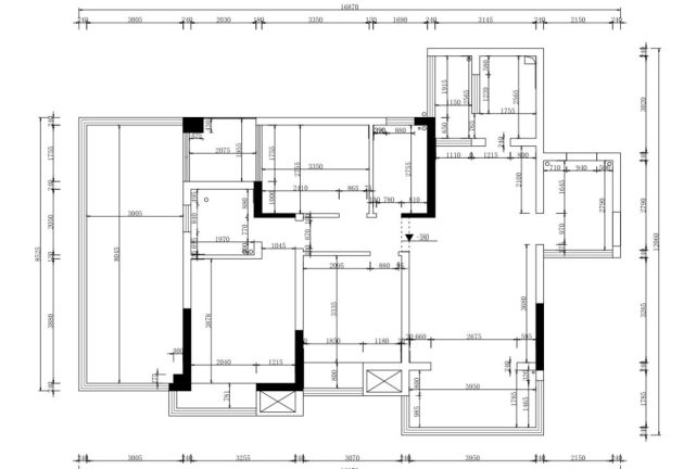
原始平面图

从原始平面图可以看出来一个三室两厅两卫的户型房子。

图片

改造后平面布局图

客户需求:男主人喜爱收藏手办/球鞋/球衣 (含少量签名及限量版)需要大量储物柜及展示柜,有一女儿。

常住一家三口,注重生活品质及休闲娱乐功能。偶尔朋友聚会(聊天/娱乐/电动/户外烧烤)所以对娱乐休闲比较看重。

PS:你的需求很重要,和设计师交流时一定要把你的真实需求告知对方,设计师肯据你的需求来进行合理调整,哪些可以实现,哪些要做调整。最重要的是最终满意的设计方案,一定是屋主和设计师的共同结果。

该套房的设计思维:打造大平层视觉效果,牺牲掉原本的次卧。与客厅打通,做了一组展示柜带书桌+吧台,(展示柜带1.2m折叠床功能,应急休息)。

图片

客餐厅效果图展示

吧台旁放置小冰箱,主人家的酒水饮料及零食独立放置,取拿方便,和休闲区一体。阳台打通,扩大客厅休息区域(客户喜欢大沙发)。

图片

吧台效果图展示

因为牺牲次卧,所以儿童房建议放置上下床。入户有两个消防管道和一个消防盒。

一个管道藏于鞋柜,另一个管道重新涂刷油漆颜色,黑红经典配色,搭配蒙德里安经典色块画,遮盖原消防栓箱。(视觉冲击强,给来做客的朋友都会留下深刻的印象)

图片

入户效果图展示

休闲阳台作用主要是:洗衣晾晒,BBQ。为了使功能区和休闲区做一个空间划分,用了两组背靠式定制柜来做软隔断,一侧洗衣柜带洗衣盆,另一侧则为洗菜盆带操作台面。

图片

休闲阳台效果图展示

阳台的另一头则是一个小水池带景观,(主人家偶尔钓鱼,需要短时间储蓄)中间大面积为休闲活动区,可以放置桌椅。

整体的色调采用了莫兰迪色系,还记得《延禧攻略》带火的色系吗?真的非常漂亮,处处也透露出高级感,有喜欢的亲们不妨大胆的尝试。

图片

客餐厅效果图展示

图片

餐厅效果图展示

图片

过道效果图展示

图片来自淘房好装设计师团队,盗版必究,有喜欢的嘛,如果你还想了解该套房间的更多细节,或者该套房屋的动态效果图,可以添加以下微信咨询。他们都有装修房子的经验,随便问他们一个问题,给你一点建议,你也会收获很大,节约不少银子哦。





对买房有疑问?直接找房产咨询师,量身定制你的个人买房解决方案!

免费咨询电话:15528302720

亲,你尚未登录!请先登录再后评论。登录
此页面所示信息由开发商提供,最终以政府部门登记备案为准,请谨慎核查。

服务热线

130 6009 5571

(周一至周日,09:00-18:00)

四川牧子科技有限责任公司

牧子云房产

牧子云房产

牧子云

微信公众号:牧子云