绵阳奥林春天实拍:砸掉墙,打造家庭核心区域,让宅在家也是一件幸福的事情!

  • 编辑:超级管理员
  • 发布时间:
  • 四川 绵阳
  • 阅读量:279

今天给大家介绍的这套房子,其实它在开始装修的时候就给大家写过分享的(绵阳的奥林春天,居然是这么装修的!)。


我比较喜欢这种规划,让整个空间看起来很是开阔,没有束缚感,最主要的是这个空间让家庭成员之间的互动性增强。

 

柜子+灯带的规划,再也不怕在黑漆漆中找衣服啦!柜体采用嵌入式设计,瞬间让顶天立地的大衣柜有了隐形的效果,从视觉上让空间变大啦。


这些都让我们的居家生活的居住舒适度直线上升。

 

今天就把它的完工照奉献给大家,这套房子在色彩上进行了大胆的运用,让我们学起来一起来装扮美丽的家。

 

再次提醒:我们在做户型规划的时候是根据自身房屋的条件,结合自己的实际需求,将自己5到10年的生活场景规划到这个居家空间中来,没有好坏之分,只有合适之选。

 

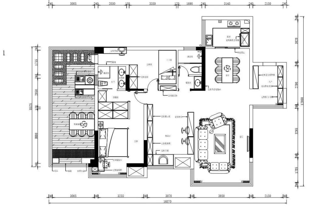
原始户型图

 

奥林春天的房子,绵阳人都知道是电梯直接入户,所以就把玄关放到这个出电梯的地方,也算把外面的空间也利用了起来。最终布局图如下:


最终布局图


此房最终在原有结构上做了些改动:



1、厨房打掉隔墙,变成U型橱房,提高厨房的利用率;


U型厨房


2、多功能房,拆掉一堵墙,扩大空间视野;


拆除墙体的多功能房


3、儿童房移动门的位置;


儿童房


4、主卧的卫生间往后移动,形成的墙面正好借给儿童房做衣柜,改动卫生间门的位置,让主卧有个衣帽间外,还多出一组衣柜,收纳扩大;


主卧


主卧衣帽间

5、公卫做成干湿分区;


公卫干湿分区


6、衣柜做成隐形的效果,让空间看起来也是显大的。

 

衣柜嵌入式

 

接下来就来看看其它空间的实拍图片吧!


电梯入户


客厅


客厅

从阳台看客餐厅


餐厅


从餐厅看客厅


露台

露台

 

软装还在陆续进入中,等全部搭配完毕,再给大家分享一次。



我是跳跳姐,淘房家居网家居频道运营总监,淘房好装创始人,装修行业10年从业经验,参与验房400余套,工地管理100余套,持续分享装修干货400余篇。欢迎咨询装修家居相关问题,微信:mytaofang2010.



  • 来源:跳跳姐


  • 对买房有疑问?直接找房产咨询师,量身定制你的个人买房解决方案!

    免费咨询电话:15528302720

    亲,你尚未登录!请先登录再后评论。登录
    此页面所示信息由开发商提供,最终以政府部门登记备案为准,请谨慎核查。

    服务热线

    130 6009 5571

    (周一至周日,09:00-18:00)

    四川牧子科技有限责任公司

    牧子云房产

    牧子云房产

    牧子云

    微信公众号:牧子云