文泉理想城邦二期M2户型,有三套方案,福利大放送哦!

  • 编辑:跳跳姐
  • 发布时间:
  • 四川 成都
  • 阅读量:192

今天我们在这个绵阳装修群内给大家分享了文泉理想城邦二期M2的三套方案,这个群的宗旨就是大家互相帮助,集思广益,装出自己的舒适小家。

 

如果你是即将装修新家的,或者家居爱好者,可以扫描下方二维码,添加美女姐姐微信,暗号:装修,进入群内,但是广告者慎入哈。



好了,接下来,就把今天朱丽叶小姐姐分享的东西,在这里给大家分享出来哈,

 

朱丽叶:今天给大家换种类似PPT的方式分析户型,看图即懂。

 

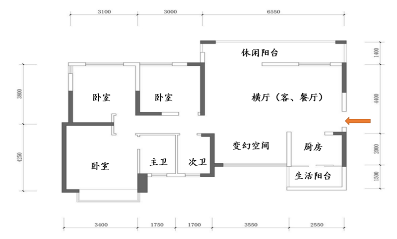
原始户型图

 

朱丽叶:从户型图和尺寸看,格局还是很不错,我的理想型,横厅意味着南北通透,空间感很大,而且这个户型可变幻空间给了我们更多可规划区域,让空间布置多元化,更合理。

 

 方案一

 

朱丽叶:这种方案其他两个卧室就是常规布局。如果家里居住人口在3-4个(父母、老人、1小孩)的话 保留一个卫生间也够,主卫就改造成衣帽间。

 

方案二


参考图

 

参考图

参考图


朱丽叶:方案一和方案二主要还是客餐厅、厨房以及变幻空间的规划不同出发。

 

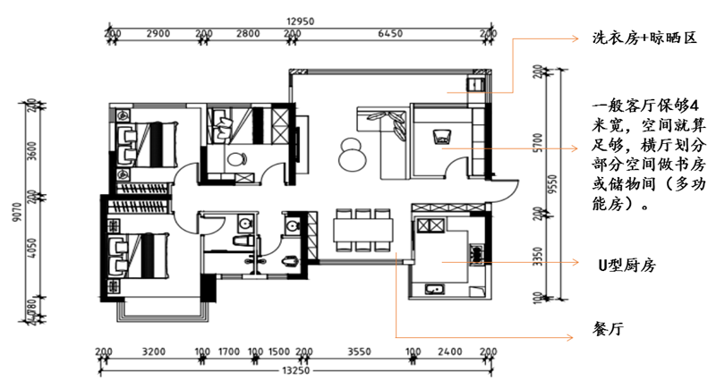
方案三


朱丽叶:其实我个人还比较喜欢方案三,方案一、二在扩大厨房之后并没有保留生活阳台,客厅阳台虽然打通做了洗衣区,但是并没有明确规划晾衣区,且客餐厅太通透。

 

客厅背后的多功能房间设计也有一种,在考虑的时候也推荐用一种较新型的材料——长虹玻璃做隔断(下部分做实墙,上部分做长虹玻璃隔断)

 

 普通白玻


长虹玻璃


总结:其实方案不必越多越好,关键是要发现户型的亮点,合理规划。这个户型目前是设计了三种方案,大家可以把喜欢的部分结合起来。另外还有一种方案,电视墙在客餐厅中间,不过大部分业主觉得这种布局舒适度不太高。所以我发两张图给大家参考一下就可以了。

 

电视墙 


电视墙


大家看明白了吗,如果没有可以添加她的微信哈。朱丽叶小姐姐是和跳跳姐一起奋斗的战友,淘房好装从无到有并肩作战的那种,参与实战验房、管理工地上百套,实践经验丰富。也有自己装修房子的经验哦,想和她聊装修的扫描下方二维码?


朱丽叶微信

 

 今天的分享就到这里吧,希望可以帮助大家装出喜欢的家。



我是跳跳姐,淘房家居网家居频道运营总监,淘房好装创始人,装修行业10年从业经验,参与验房400余套,工地管理100余套,持续分享装修干货400余篇。欢迎咨询装修家居相关问题,微信:mytaofang2010.



  • 来源:跳跳姐


  • 对买房有疑问?直接找房产咨询师,量身定制你的个人买房解决方案!

    免费咨询电话:15528302720

    亲,你尚未登录!请先登录再后评论。登录
    此页面所示信息由开发商提供,最终以政府部门登记备案为准,请谨慎核查。

    服务热线

    130 6009 5571

    (周一至周日,09:00-18:00)

    四川牧子科技有限责任公司

    牧子云房产

    牧子云房产

    牧子云

    微信公众号:牧子云