户型分享:中梁壹号院F户型分享实况,手把手教你打造适合自己的舒适新家!

  • 编辑:跳跳姐
  • 发布时间:
  • 四川 绵阳
  • 阅读量:512

今天下午两点半到三点半,我们组织的中梁壹号院F户型的分享准时在群内分享,本次的分享户型也是经过我们团队的小伙们集体的讨论,希望能将最合理的规划分享给大家,让大家掌握方法,规划打造出自己的心中的那个家。

 


 

我们首先来看看这套户型的原始户型图,如下图:



 


 

户型为:四室两厅两卫,四个卧室空间,两个卫生间,那我们可以根据自己的需求对四个卧室空间以功能来进行划分。

 

两个卫生间的基本做法是这样子的,保留两个卫生间的功能,还有种就是保留一个卫生间的功能,另一个作为衣帽间或者储物间。

 

当然对每个空间功能的划分,你是需要根据自己的需求来进行的。

 

这次我们给这户型赋予了三个不同的需求,也就是有三种不同的方案,方案没有最好,只有适不适合自己。适合自己的就是最好的。

 

方案一、未做任何的户型改造,适合于家庭人口较多,四个卧室空间全部归规划为卧室,居住人员较多,保留两个卫生间,实际使用会更加的方便。



 

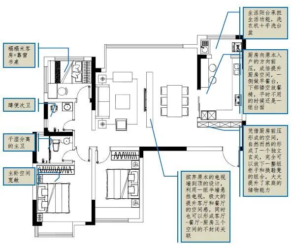
这个方案,我特别喜欢,厨房和餐厅的这种规划,打造家庭核心区域,让家庭成员的联系更加的紧密,比如妈妈在厨房做饭,娃娃可以在餐桌做作业,她们之间可以随时进行互动的。




方案二、三个卧室,增大客餐厅的活动空间,厨房和入户做了点变动,依然是以家庭成员的联络为中心,同样可以是增加家庭成员之间的感情联络,当然平时喜欢在家里招待朋友的亲们这种规划也是非常好的。


装修示意图:





方案二的方案也可以是这样的,电视墙换个位置。如下图


装修示意图:





方案三、重点是打造了一件书房,这个书房可以是封闭式的也可以是半开放式的,也可以是开放式的。多种选择你喜欢哪一种。

装修示意图:




三种方案的规划主要是针对公共区域进行了调整,整个户型还是很不错的,动静分区,交通动线也很合理。厨房也有几种不同的规划,看你自己喜欢哪一种呢?

 

温馨提示:我们常规家装对空间的规划,一定要实用,根据自己的需求来调整,所以如果你现在已经买房了,那就动起来手来把你对新家的居住需求记录下来吧。


如果你对这些方案还有不同的规划,可以在下方留言哦。

 

我是跳跳姐,淘房家具网家居频道运营总监,淘房好装创始人,很乐于给大家分享关于房子的一切问题,有什么不懂的,不了解的,都可以加我微信咨询我哦。微信号:mytaofang2010.

 

 




  • 来源:跳跳姐


  • 对买房有疑问?直接找房产咨询师,量身定制你的个人买房解决方案!

    免费咨询电话:15528302720

    亲,你尚未登录!请先登录再后评论。登录
    此页面所示信息由开发商提供,最终以政府部门登记备案为准,请谨慎核查。

    服务热线

    130 6009 5571

    (周一至周日,09:00-18:00)

    四川牧子科技有限责任公司

    牧子云房产

    牧子云房产

    牧子云

    微信公众号:牧子云